WCFzx物料調節閘門
丁寶勤 13906276368(技術)
電話:0513-88400999 傳真:0513-88400998 郵箱:jszk@vip.163.com
一、概述
物料調節閘門是江蘇中礦根據氣力輸送工況需求研制的一種調節、切斷型閘門,廣泛適用于建材、冶金、礦山、輕工、玻璃等行業的氣力輸送系統。
二、結構特點
物料調節閘門采用碳鋼焊接而成,分上下兩個通道,下通道為充氣層,上通道為輸送物料層,中間為透氣層。螺旋型閘板可任意調節閘門開度,適用于無粘度的干燥粉料,細微顆粒料等。
具有能耗小,無噪音,無污染,少維修,無卡阻,操作方便,使用壽命長等特點。
三、性能參數

四、工作原理
物料調節閘門由風機給予低壓小容量空氣經下通道人氣口由充氣層充氣,氣體透過沸騰板均勻向上噴吹,鼓動物料向上位移,物料自重下落時由設備安裝斜度而產生位移,不斷重復致使物料向前位移。調節閘門由絲桿閘板及密封件等組成,由人工轉動手輪帶動絲桿旋轉,使閘門隨著螺旋絲桿產生位移,起到任意調節或切斷的作用。
五、使用說明
安裝前請檢查閘門內腔有無雜物附著,沸騰板受潮沒有,如沸騰板受潮請更換后再進行安裝,否則影響使用效果。檢查各傳動部分是否靈活可靠。法蘭間連接需加裝密封墊片后再均勻擰緊螺栓。
調試時,人工轉動手輪,順時針旋轉為關,反之為開,運行無卡阻現象即可。
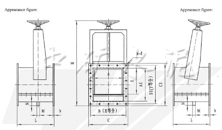
六、外形尺寸


七、訂貨須知
1、選用訂貨時請參照產品樣本注明產品規格、型號及技術參數(使用溫度、設備工況、介質性質等)。
2、表格中示例規格、用于特殊介質或其他特殊要求,請與南通中礦經銷部、技術部聯系,可為您另行設計、制造。
上一頁:氣動棒條閥、電液動棒條閥
下一頁:斜槽分料閥












