氣動高溫蝶閥(6000M型)
丁寶勤 13906276368(技術)
電話:0513-88400999 傳真:0513-88400998 郵箱:jszk@vip.163.com

一、 用途:
氣動高溫蝶閥(6000M型)是與氣動薄膜式,活塞式執行機構配套使用,廣泛應用于工業部門的節流裝置中,達到對生產過程的自動調節或遠距高控制。特別適合高溫低壓差且要求低泄漏場合。
氣動高溫蝶閥(6000M型)是與氣動薄膜式,活塞式執行機構配套使用,廣泛應用于工業部門的節流裝置中,達到對生產過程的自動調節或遠距高控制。特別適合高溫低壓差且要求低泄漏場合。
二、 主要參數



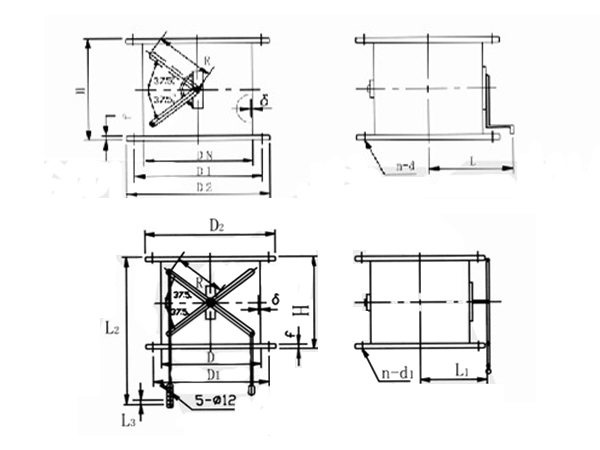
三、 外形及安裝尺寸:
外形見圖一、外形及安裝尺寸見表三
外形見圖一、外形及安裝尺寸見表三
四、 型號編制參見附錄格式二:



下一頁:氣動高溫蝶閥













